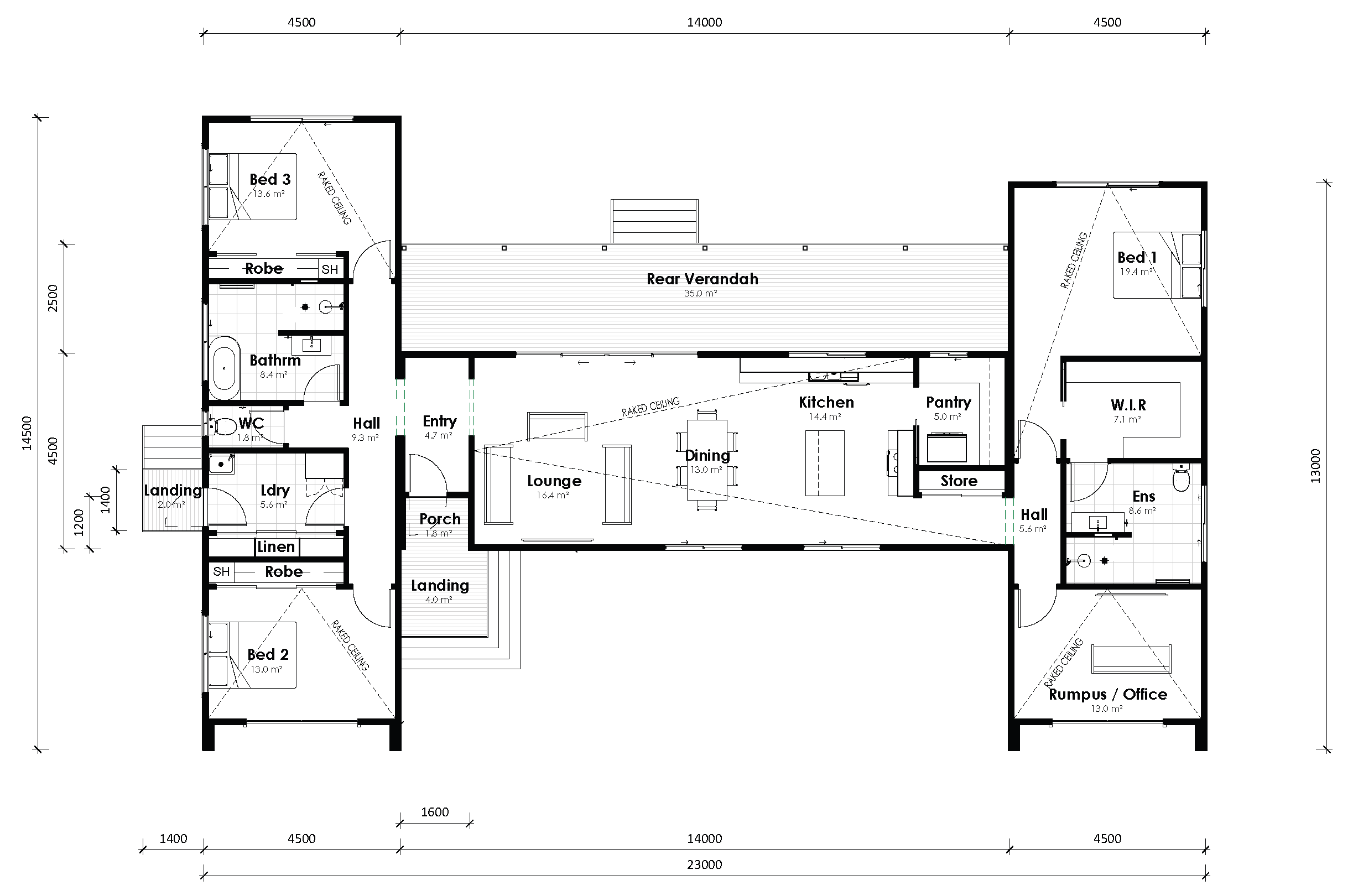
Maleny 222

3

2

222

Luxury farmhouse living with modern design, open spaces, and stunning views.

Maleny 222

SELECT SIZE

3

2

Total floor area 222m²
Floor 180m²
Verandah 35m²

Experience the epitome of modern acreage living in this luxury farmhouse, where thoughtful design meets classic sophistication. Set on a sprawling estate, this residence boasts a sleek, open-plan layout with soaring ceilings and floor-to-ceiling windows that flood the space with light and offer breathtaking views of the surrounding landscape. Featuring high-end finishes, a chef kitchen, luxurious master suite, and integrated indoor-outdoor living.

* Customisations will affect final dimensions.


Standard features

  • Private Master Suite
  • Walk-in Robe
  • Ensuite
  • 8ft Ceilings
  • Porch
  • Dining
  • Indoor/Outdoor Living
  • Laundry
  • Storage
  • Family Bathroom
  • Guest Bedroom
  • Airconditioning
20260115_Maleny_222_Floor plan

logo_icon

Look it over...
Let's talk.

max-hermansson-ewFKiUYV2-8-unsplash 1

Want more information on the Maleny 218?

Call 1800 688 044 or send us an enquiry

badge
We’ve been building modular homes for over thirty years. 
We understand that buying a home isn’t just about a physical place to live, it’s about creating a space where memories are made, and futures are built.  
We are committed to making the home building journey as incredible as possible.

Similar designs

Bangalow

Acreage

Kingscliffe-Mk1-1064x500-1

SELECT SIZE

Bangalow 124

2

1

Total area

124

Floor

91

Verandah

18

Kingscliffe-Mk1-1064x500-1

SELECT SIZE

Bangalow 146

2

2

Total area

146

Floor

109

Verandah

21

Kingscliffe-Mk1-1064x500-1

SELECT SIZE

Bangalow 168

3

2

Total area

168

Floor

131

Verandah

21

Bexhill

Acreage

Kingscliffe-Mk1-1064x500-1

SELECT SIZE

Bexhill 128

2

1

Total area

128

Floor

92

Verandah

17

Kingscliffe-Mk1-1064x500-1

SELECT SIZE

Bexhill 168

2

2

Total area

168

Floor

122

Verandah

17

Kingscliffe-Mk1-1064x500-1

SELECT SIZE

Bexhill 232

3

2

Total area

232

Floor

169

Verandah

18

Kingscliffe-Mk1-1064x500-1

SELECT SIZE

Bexhill 289

4

2

Total area

290

Floor

197

Verandah

18

Burnett

Acreage

Kingscliffe-Mk1-1064x500-1

SELECT SIZE

Burnett 278

3

2

Total area

278

Floor

165

Verandah

35

Kingscliffe-Mk1-1064x500-1

SELECT SIZE

Burnett 321

4

2

Total area

321

Floor

198

Verandah

35

Kingscliffe-Mk1-1064x500-1

SELECT SIZE

Burnett 372

5

2

Total area

372

Floor

230

Verandah

44

Emerald

Acreage

Kingscliffe-Mk1-1064x500-1
Virtual Tour

SELECT SIZE

Emerald 109

2

1

Total area

109

Floor

68

Verandah

36

Kingscliffe-Mk1-1064x500-1
Virtual Tour

SELECT SIZE

Emerald 130

2

2

Total area

130

Floor

82

Verandah

45

Glenvale

Acreage

Kingscliffe-Mk1-1064x500-1
Virtual Tour Warwick

SELECT SIZE

Glenvale 251

4

2

Total area

251

Floor

174

Verandah

39

Kingscliffe-Mk1-1064x500-1
Virtual Tour Warwick

SELECT SIZE

Glenvale 294

5

2

Total area

294

Floor

210

Verandah

47