Emerald 130

2

2

130

Compact yet spacious home combining modern comfort with serene acreage living and outdoor connection.

Emerald 130

SELECT SIZE

2

2

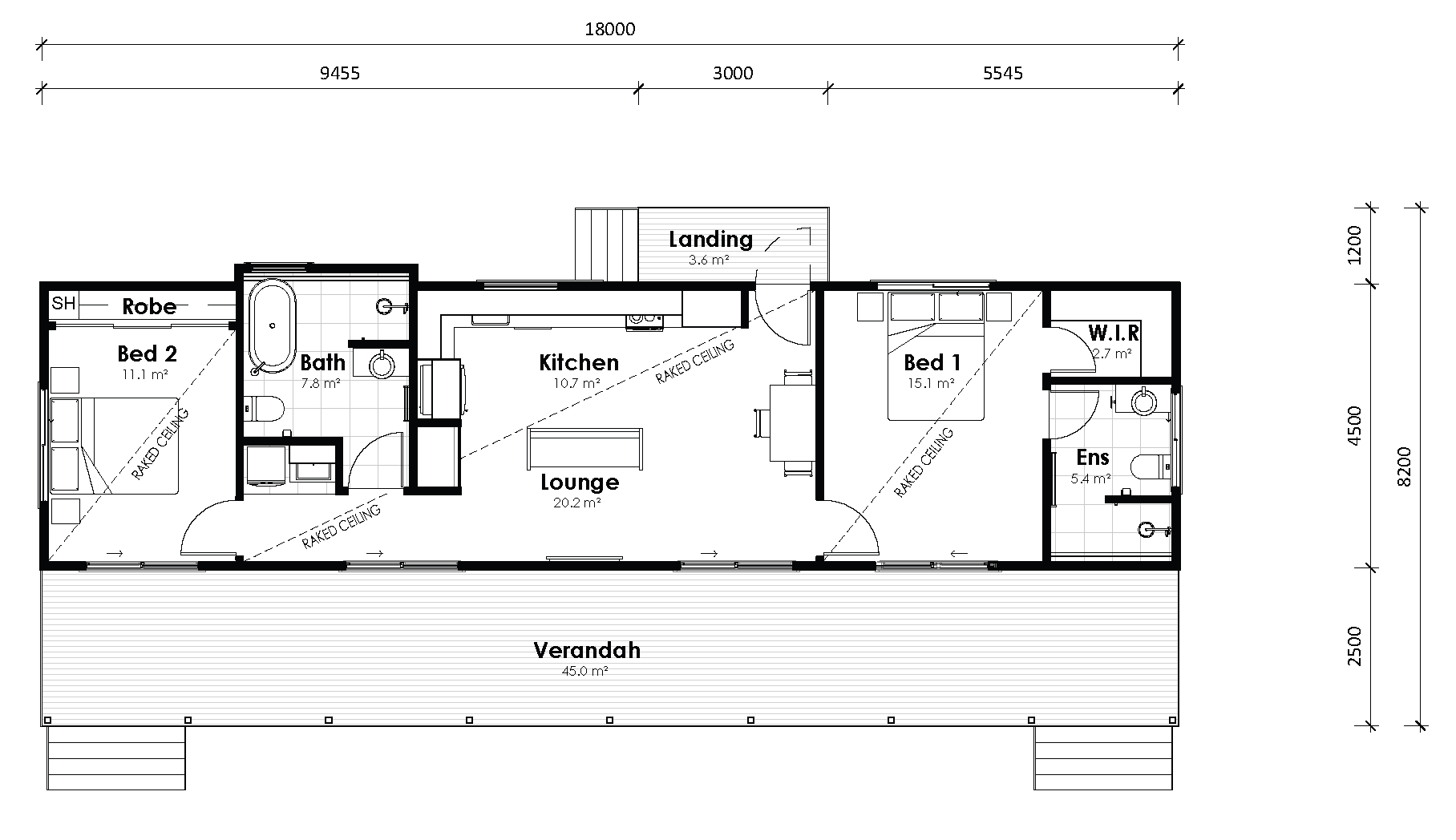
Total floor area 130m²
Floor 82m²
Verandah 45m²

The Emerald is a beautifully designed compact home that maximises space while offering the tranquillity of acreage living. With its clever layout and modern finishes, this home provides comfort without compromise. Enjoy the open living spaces, stylish kitchen, and serene bedrooms that make Emerald the perfect retreat. The expansive verandah offers ample outdoor opportunities, making it an ideal choice for those seeking a lifestyle of simplicity and connection to nature.

* Customisations will affect final dimensions.


Standard features

  • Private Master Suite
  • Walk-in Robe
  • Ensuite
  • Raked Ceiling
  • Porch
  • Dining
  • Indoor/Outdoor Living
  • Laundry
  • Storage
  • Family Bathroom
  • Guest Bedroom
  • Air-conditioning
20260217_Emerald_130_Floor plan

Virtual tour

logo_icon

Look it over...
Let's talk.

max-hermansson-ewFKiUYV2-8-unsplash 1

Want more information on the Emerald 129?

Call 1800 688 044 or send us an enquiry

badge
We’ve been building modular homes for over thirty years. 
We understand that buying a home isn’t just about a physical place to live, it’s about creating a space where memories are made, and futures are built.  
We are committed to making the home building journey as incredible as possible.

Similar designs

Bangalow

Acreage

Kingscliffe-Mk1-1064x500-1

SELECT SIZE

Bangalow 124

2

1

Total area

124

Floor

91

Verandah

18

Kingscliffe-Mk1-1064x500-1

SELECT SIZE

Bangalow 146

2

2

Total area

146

Floor

109

Verandah

21

Kingscliffe-Mk1-1064x500-1

SELECT SIZE

Bangalow 168

3

2

Total area

168

Floor

131

Verandah

21

Bexhill

Acreage

Kingscliffe-Mk1-1064x500-1

SELECT SIZE

Bexhill 128

2

1

Total area

128

Floor

92

Verandah

17

Kingscliffe-Mk1-1064x500-1

SELECT SIZE

Bexhill 168

2

2

Total area

168

Floor

122

Verandah

17

Kingscliffe-Mk1-1064x500-1

SELECT SIZE

Bexhill 232

3

2

Total area

232

Floor

169

Verandah

18

Kingscliffe-Mk1-1064x500-1

SELECT SIZE

Bexhill 289

4

2

Total area

290

Floor

197

Verandah

18

Burnett

Acreage

Kingscliffe-Mk1-1064x500-1

SELECT SIZE

Burnett 278

3

2

Total area

278

Floor

165

Verandah

35

Kingscliffe-Mk1-1064x500-1

SELECT SIZE

Burnett 321

4

2

Total area

321

Floor

198

Verandah

35

Kingscliffe-Mk1-1064x500-1

SELECT SIZE

Burnett 372

5

2

Total area

372

Floor

230

Verandah

44

Glenvale

Acreage

Kingscliffe-Mk1-1064x500-1
Virtual Tour Warwick

SELECT SIZE

Glenvale 251

4

2

Total area

251

Floor

174

Verandah

39

Kingscliffe-Mk1-1064x500-1
Virtual Tour Warwick

SELECT SIZE

Glenvale 294

5

2

Total area

294

Floor

210

Verandah

47

Maleny

Acreage

Kingscliffe-Mk1-1064x500-1

SELECT SIZE

Maleny 222

3

2

Total area

222

Floor

180

Verandah

35

Kingscliffe-Mk1-1064x500-1

SELECT SIZE

Maleny 255

4

2

Total area

255

Floor

210

Verandah

38

Kingscliffe-Mk1-1064x500-1

SELECT SIZE

Maleny 287

5

2

Total area

287

Floor

234

Verandah

45