Glenvale 251

4

2

251

Stunning Australiana homestead with wraparound verandah, blending beauty, function, and serene country living.

Glenvale 251

SELECT SIZE

4

2

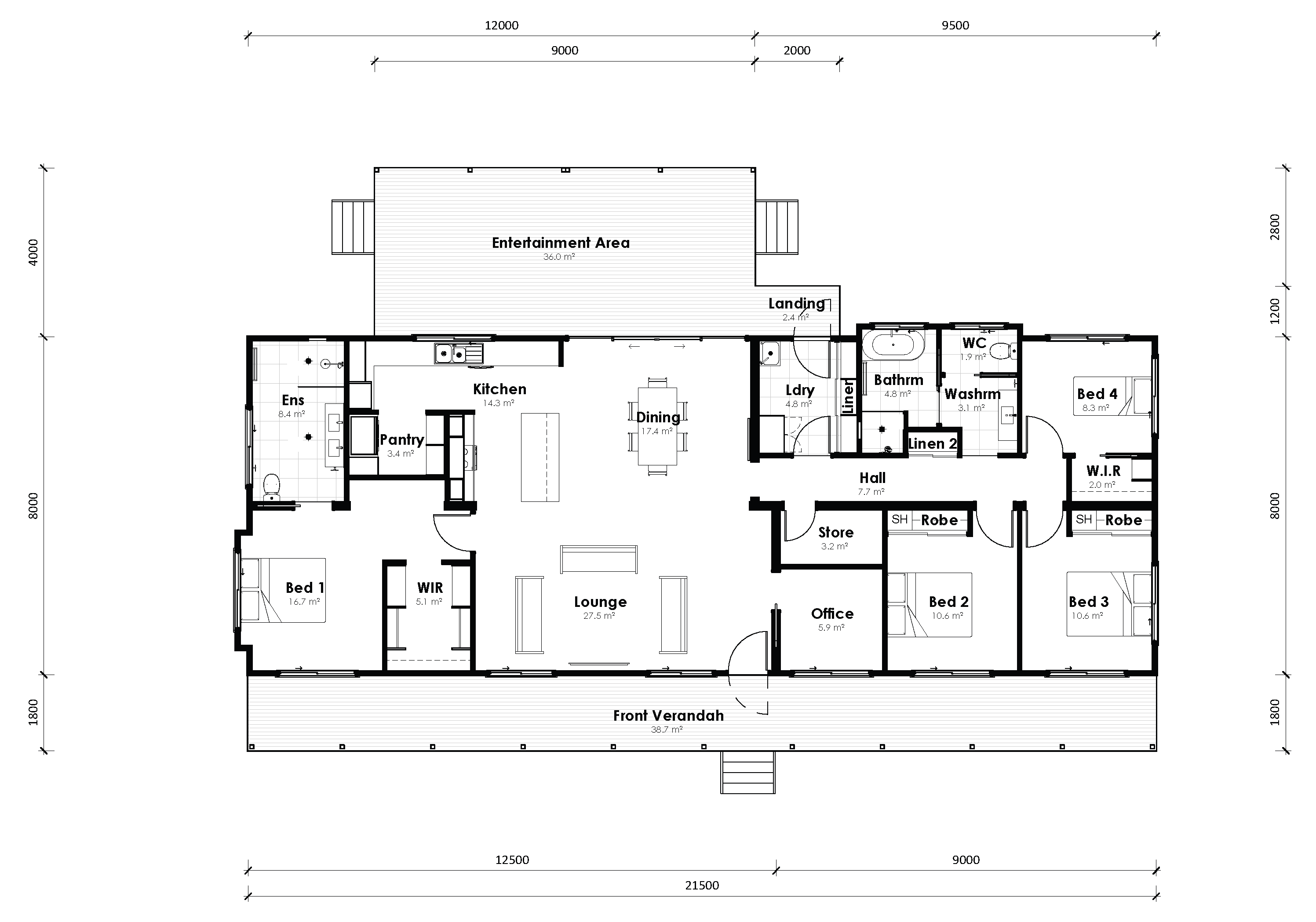
Total floor area 251m²
Floor 174m²
Verandah 43m²

The Glenvale is a breathtaking Australiana homestead that truly captures the essence of country living. With its stunning wraparound verandah and charming stone features, this home offers a seamless blend of beauty and function. Imagine warm evenings spent on the porch, watching the sun set over your lush gardens. Inside, spacious rooms filled with natural light create an inviting atmosphere, making the Glenvale a true haven for relaxation and connection.

* Customisations will affect final dimensions.


Standard features

  • Private Master Suite
  • Walk-in Robe
  • Ensuite
  • 9ft Ceilings
  • Porch
  • Dining
  • Indoor/Outdoor Living
  • Laundry
  • Storage
  • Family Bathroom
  • Guest Bedroom
  • Airconditioning
20251111_Glenvale_251_Floor plan

Virtual tour

logo_icon

Look it over...
Let's talk.

max-hermansson-ewFKiUYV2-8-unsplash 1

Want more information on the Glenvale 219?

Call 1800 688 044 or send us an enquiry

badge
We’ve been building modular homes for over thirty years. 
We understand that buying a home isn’t just about a physical place to live, it’s about creating a space where memories are made, and futures are built.  
We are committed to making the home building journey as incredible as possible.

Similar designs

Bangalow

Acreage

Kingscliffe-Mk1-1064x500-1

SELECT SIZE

Bangalow 124

2

1

Total area

124

Floor

91

Verandah

18

Kingscliffe-Mk1-1064x500-1

SELECT SIZE

Bangalow 146

2

2

Total area

146

Floor

109

Verandah

21

Kingscliffe-Mk1-1064x500-1

SELECT SIZE

Bangalow 168

3

2

Total area

168

Floor

131

Verandah

21

Bexhill

Acreage

Kingscliffe-Mk1-1064x500-1

SELECT SIZE

Bexhill 128

2

1

Total area

128

Floor

92

Verandah

17

Kingscliffe-Mk1-1064x500-1

SELECT SIZE

Bexhill 168

2

2

Total area

168

Floor

122

Verandah

17

Kingscliffe-Mk1-1064x500-1

SELECT SIZE

Bexhill 232

3

2

Total area

232

Floor

169

Verandah

18

Kingscliffe-Mk1-1064x500-1

SELECT SIZE

Bexhill 289

4

2

Total area

290

Floor

197

Verandah

18

Burnett

Acreage

Kingscliffe-Mk1-1064x500-1

SELECT SIZE

Burnett 278

3

2

Total area

278

Floor

165

Verandah

35

Kingscliffe-Mk1-1064x500-1

SELECT SIZE

Burnett 321

4

2

Total area

321

Floor

198

Verandah

35

Kingscliffe-Mk1-1064x500-1

SELECT SIZE

Burnett 372

5

2

Total area

372

Floor

230

Verandah

44

Emerald

Acreage

Kingscliffe-Mk1-1064x500-1
Virtual Tour

SELECT SIZE

Emerald 109

2

1

Total area

109

Floor

68

Verandah

36

Kingscliffe-Mk1-1064x500-1
Virtual Tour

SELECT SIZE

Emerald 130

2

2

Total area

130

Floor

82

Verandah

45

Maleny

Acreage

Kingscliffe-Mk1-1064x500-1

SELECT SIZE

Maleny 222

3

2

Total area

222

Floor

180

Verandah

35

Kingscliffe-Mk1-1064x500-1

SELECT SIZE

Maleny 255

4

2

Total area

255

Floor

210

Verandah

38

Kingscliffe-Mk1-1064x500-1

SELECT SIZE

Maleny 287

5

2

Total area

287

Floor

234

Verandah

45