Bangalow 124

2

1

124

Charming Scandi farmhouse blending rustic charm with modern design, offering comfort and elegance.

Bangalow 124

SELECT SIZE

2

1

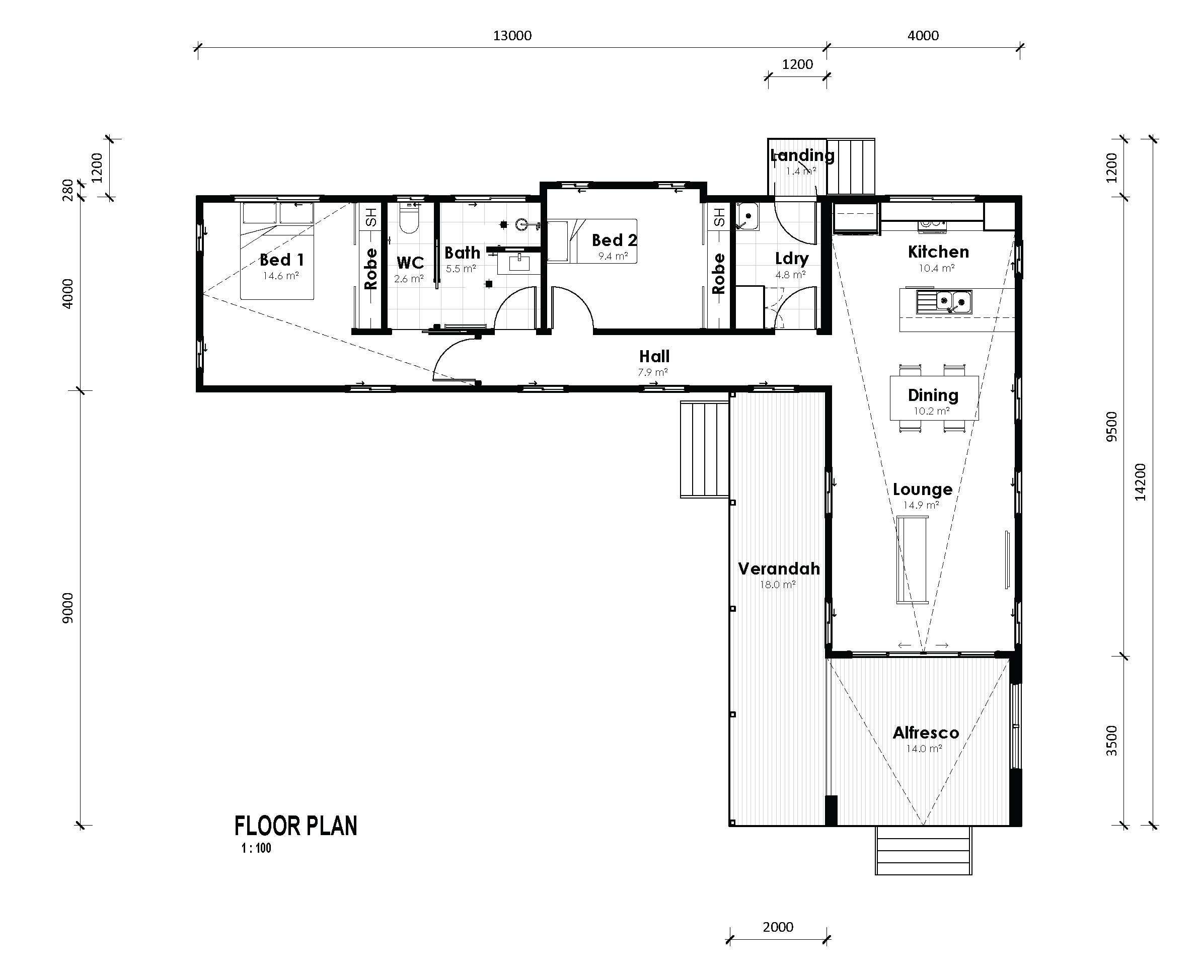
Total floor area 124.4m²
Floor 91m²
Verandah 18m²

The Bangalow is a charming Scandi farmhouse that perfectly marries rustic charm with modern design. Boasting exposed beams, airy spaces, and a welcoming verandah, this home invites you to unwind and enjoy the simple pleasures of life. The heart of the home features a stylish kitchen with contemporary appliances and a large bench, ideal for family gatherings. With its blend of comfort and elegance, the Bangalow is your perfect retreat.

* Customisations will affect final dimensions.


Standard features

  • Private Master Suite
  • Walk-in Robe
  • Ensuite
  • 8ft Ceilings
  • Porch
  • Dining
  • Indoor/Outdoor Living
  • Laundry
  • Storage
  • Family Bathroom
  • Guest Bedroom
  • Air-conditioning
20260115_Bangalow_124_ Floor plan

logo_icon

Look it over...
Let's talk.

max-hermansson-ewFKiUYV2-8-unsplash 1

Want more information on the Bangalow 107?

Call 1800 688 044 or send us an enquiry

badge
We’ve been building modular homes for over thirty years. 
We understand that buying a home isn’t just about a physical place to live, it’s about creating a space where memories are made, and futures are built.  
We are committed to making the home building journey as incredible as possible.

Similar designs

Bexhill

Acreage

Kingscliffe-Mk1-1064x500-1

SELECT SIZE

Bexhill 128

2

1

Total area

128

Floor

92

Verandah

17

Kingscliffe-Mk1-1064x500-1

SELECT SIZE

Bexhill 168

2

2

Total area

168

Floor

122

Verandah

17

Kingscliffe-Mk1-1064x500-1

SELECT SIZE

Bexhill 232

3

2

Total area

232

Floor

169

Verandah

18

Kingscliffe-Mk1-1064x500-1

SELECT SIZE

Bexhill 289

4

2

Total area

290

Floor

197

Verandah

18

Burnett

Acreage

Kingscliffe-Mk1-1064x500-1

SELECT SIZE

Burnett 278

3

2

Total area

278

Floor

165

Verandah

35

Kingscliffe-Mk1-1064x500-1

SELECT SIZE

Burnett 321

4

2

Total area

321

Floor

198

Verandah

35

Kingscliffe-Mk1-1064x500-1

SELECT SIZE

Burnett 372

5

2

Total area

372

Floor

230

Verandah

44

Emerald

Acreage

Kingscliffe-Mk1-1064x500-1
Virtual Tour

SELECT SIZE

Emerald 109

2

1

Total area

109

Floor

68

Verandah

36

Kingscliffe-Mk1-1064x500-1
Virtual Tour

SELECT SIZE

Emerald 130

2

2

Total area

130

Floor

82

Verandah

45

Glenvale

Acreage

Kingscliffe-Mk1-1064x500-1
Virtual Tour Warwick

SELECT SIZE

Glenvale 251

4

2

Total area

251

Floor

174

Verandah

39

Kingscliffe-Mk1-1064x500-1
Virtual Tour Warwick

SELECT SIZE

Glenvale 294

5

2

Total area

294

Floor

210

Verandah

47

Maleny

Acreage

Kingscliffe-Mk1-1064x500-1

SELECT SIZE

Maleny 222

3

2

Total area

222

Floor

180

Verandah

35

Kingscliffe-Mk1-1064x500-1

SELECT SIZE

Maleny 255

4

2

Total area

255

Floor

210

Verandah

38

Kingscliffe-Mk1-1064x500-1

SELECT SIZE

Maleny 287

5

2

Total area

287

Floor

234

Verandah

45