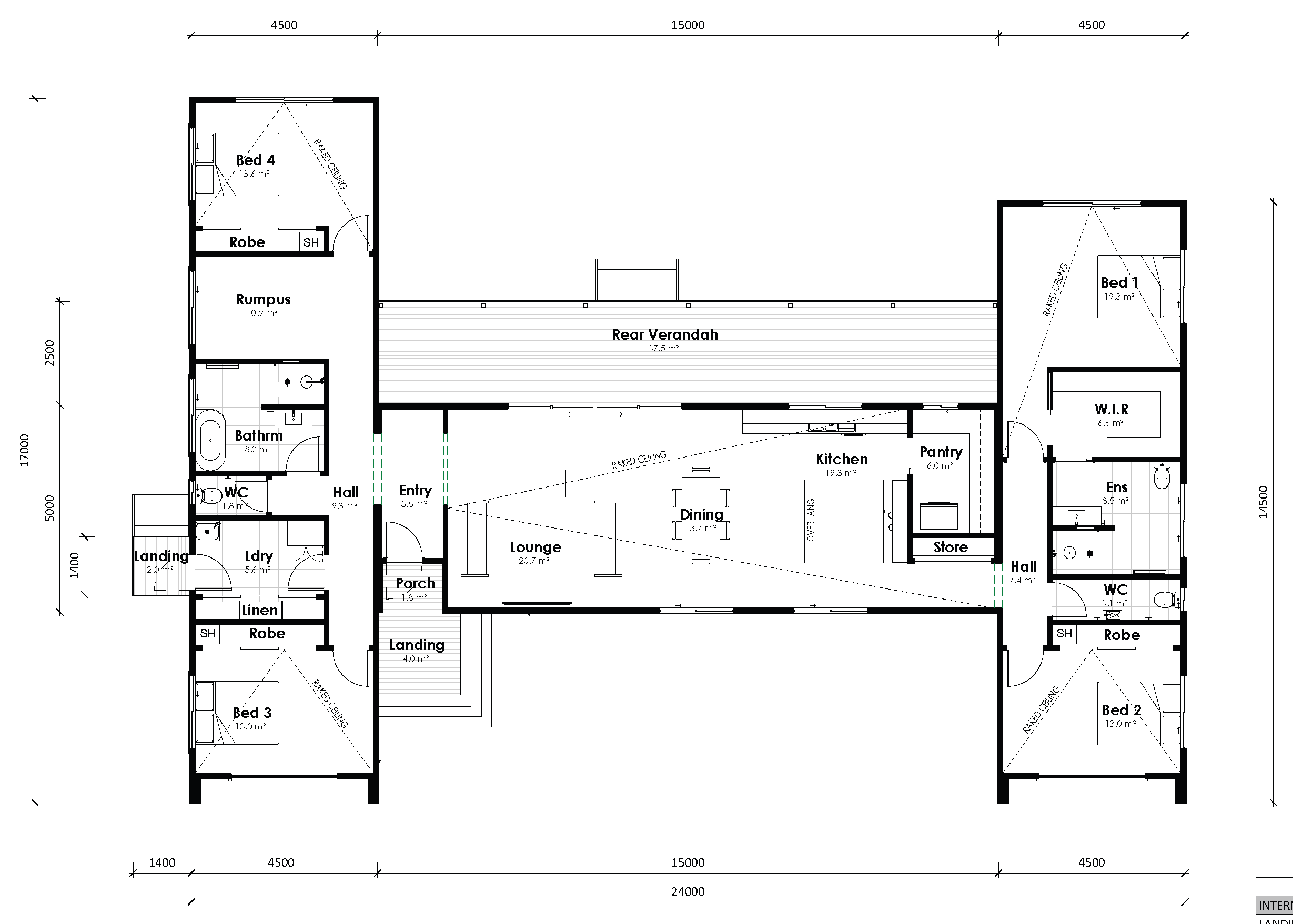
Maleny 255
4
2
255
Luxury farmhouse living with modern design, open spaces, and stunning views.
Maleny 255
4
2
Total floor area 255m²
Floor 210m²
Verandah 37.5m²
Experience the epitome of modern acreage living in this luxury farmhouse, where thoughtful design meets classic sophistication. Set on a sprawling estate, this residence boasts a sleek, open-plan layout with soaring ceilings and floor-to-ceiling windows that flood the space with light and offer breathtaking views of the surrounding landscape. Featuring high-end finishes, a chef kitchen, luxurious master suite, and integrated indoor-outdoor living.
* Customisations will affect final dimensions.
Standard features
- Private Master Suite
- Walk-in Robe
- Ensuite
- 8ft Ceilings
- Porch
- Dining
- Indoor/Outdoor Living
- Laundry
- Storage
- Family Bathroom
- Guest Bedroom
- Airconditioning
Want more information on the Maleny 250?
Call 1800 688 044 or send us an enquiry
We’ve been building modular homes for over thirty years.
We understand that buying a home isn’t just about a physical place to live, it’s about creating a space where memories are made, and futures are built.
We are committed to making the home building journey as incredible as possible.
We understand that buying a home isn’t just about a physical place to live, it’s about creating a space where memories are made, and futures are built.
We are committed to making the home building journey as incredible as possible.
Similar designs
Bangalow
Acreage
Bexhill
Acreage
Burnett
Acreage
Emerald
Acreage
Glenvale
Acreage