Samford 113

2

1

113

Unique blend of modern rural design with suburban charm, featuring natural materials and an inviting open layout.

Samford 113

SELECT SIZE

2

1

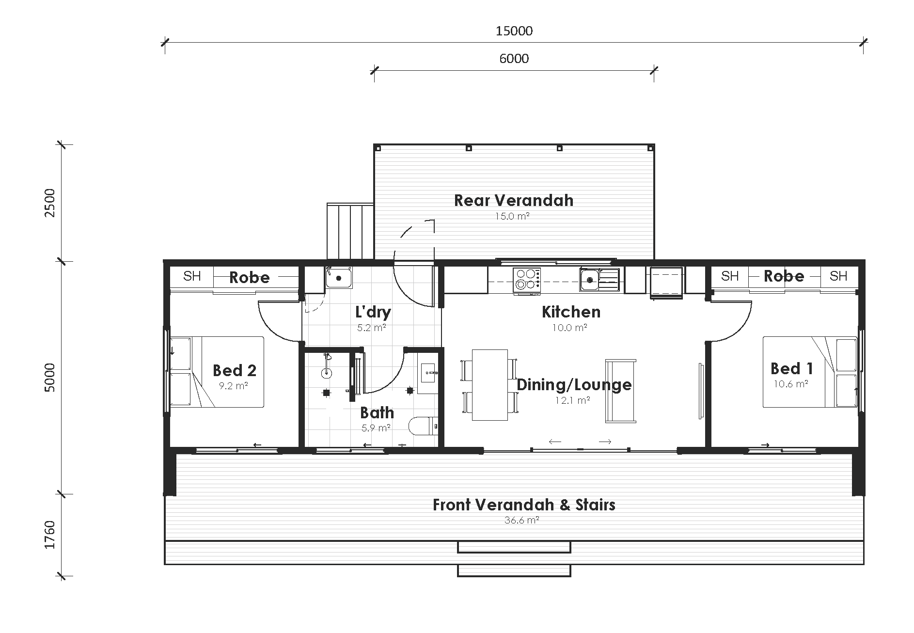
Total floor area 113.1m²
Floor 61m²
Veranda 15m²

The Samford beautifully blends modern rural design with a touch of suburban charm, creating a unique and inviting home. Its design combines the simplicity and warmth of rural aesthetics with stylish, contemporary features. The exterior showcases a mix of natural elements like wood and stone, while the interior open plan layout with large windows works in harmony to bring the outdoors in.

* Customisations will affect final dimensions.


Standard features

  • Private Master Suite
  • Walk-in Robe
  • Ensuite
  • 9ft Ceilings
  • Porch
  • Dining
  • Indoor/Outdoor Living
  • Laundry
  • Storage
  • Family Bathroom
  • Guest Bedroom
  • Air-conditioning
20251111_Samford_113_Floor plan

logo_icon

Look it over...
Let's talk.

max-hermansson-ewFKiUYV2-8-unsplash 1

Want more information on the Samford 90?

Call 1800 688 044 or send us an enquiry

badge
We’ve been building modular homes for over thirty years. 
We understand that buying a home isn’t just about a physical place to live, it’s about creating a space where memories are made, and futures are built.  
We are committed to making the home building journey as incredible as possible.

Similar designs

Moreton

Urban

Kingscliffe-Mk1-1064x500-1
Virtual Tour

SELECT SIZE

Moreton 175

2

2

Total area

176

Floor

146

Verandah

17

Kingscliffe-Mk1-1064x500-1
Virtual Tour

SELECT SIZE

Moreton 175

2

2

Total area

176

Floor

146

Verandah

17

Kingscliffe-Mk1-1064x500-1
Virtual Tour

SELECT SIZE

Moreton 235

3

2

Total area

235

Floor

190

Verandah

34

Kingscliffe-Mk1-1064x500-1
Virtual Tour

SELECT SIZE

Moreton 255

4

2

Total area

255

Floor

208

Verandah

34

Ascot

Urban

Kingscliffe-Mk1-1064x500-1

SELECT SIZE

Ascot 153

2

2

Total area

154

Floor

118

Verandah

11

Kingscliffe-Mk1-1064x500-1

SELECT SIZE

Ascot 250

3

2

Total area

250

Floor

172

Verandah

15

Kingscliffe-Mk1-1064x500-1

SELECT SIZE

Ascot 306

4

2

Total area

303

Floor

287

Verandah

15

Newport

Urban

Kingscliffe-Mk1-1064x500-1

SELECT SIZE

Newport 191

3

2

Total area

191

Floor

174

Verandah

17

Kingscliffe-Mk1-1064x500-1

SELECT SIZE

Newport 219

4

2

Total area

219

Floor

199

Verandah

20