Ascot 153

2

2

153

Refined yet contemporary home with open-plan living, high ceilings, and a perfect blend of timeless elegance and modern convenience.

Ascot 153

SELECT SIZE

2

2

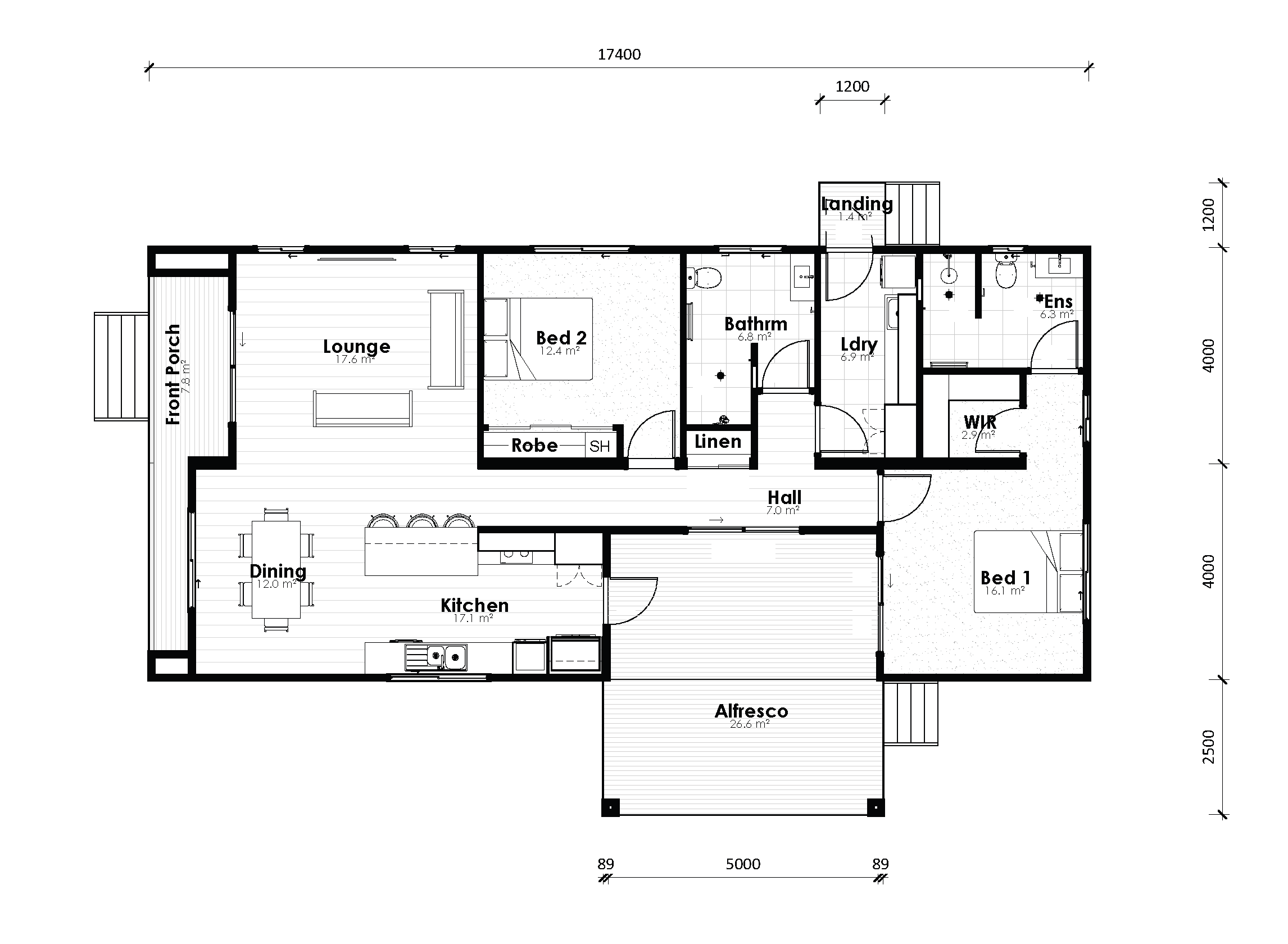
Total floor area 153.6m²
Floor 117m²
Alfresco 26m²

The Ascot’s classic style offers a refined yet contemporary living experience. Its sleek, modern exterior complements a thoughtfully designed interior featuring an open-plan layout and high ceilings that create a sense of space and light. The clean lines and premium materials enhance both style and function, making The Ascot a perfect choice for those who appreciate a refined blend of timeless elegance and contemporary convenience.

* Customisations will affect final dimensions.


Standard features

  • Private Master Suite
  • Walk-in Robe
  • Ensuite
  • 9ft Ceilings
  • Porch
  • Dining
  • Indoor/Outdoor Living
  • Laundry
  • Storage
  • Family Bathroom
  • Guest Bedroom
  • Airconditioning
20251114_Ascot_153_Floor plan-1

logo_icon

Look it over...
Let's talk.

max-hermansson-ewFKiUYV2-8-unsplash 1

Want more information on the Ascot 155?

Call 1800 688 044 or send us an enquiry

badge
We’ve been building modular homes for over thirty years. 
We understand that buying a home isn’t just about a physical place to live, it’s about creating a space where memories are made, and futures are built.  
We are committed to making the home building journey as incredible as possible.

Similar designs

Moreton

Urban

Kingscliffe-Mk1-1064x500-1
Virtual Tour

SELECT SIZE

Moreton 175

2

2

Total area

176

Floor

146

Verandah

17

Kingscliffe-Mk1-1064x500-1
Virtual Tour

SELECT SIZE

Moreton 175

2

2

Total area

176

Floor

146

Verandah

17

Kingscliffe-Mk1-1064x500-1
Virtual Tour

SELECT SIZE

Moreton 235

3

2

Total area

235

Floor

190

Verandah

34

Kingscliffe-Mk1-1064x500-1
Virtual Tour

SELECT SIZE

Moreton 255

4

2

Total area

255

Floor

208

Verandah

34

Newport

Urban

Kingscliffe-Mk1-1064x500-1

SELECT SIZE

Newport 191

3

2

Total area

191

Floor

174

Verandah

17

Kingscliffe-Mk1-1064x500-1

SELECT SIZE

Newport 219

4

2

Total area

219

Floor

199

Verandah

20

Samford

Urban

Kingscliffe-Mk1-1064x500-1

SELECT SIZE

Samford 113

2

1

Total area

113

Floor

62

Verandah

15

Kingscliffe-Mk1-1064x500-1

SELECT SIZE

Samford 132

2

2

Total area

133

Floor

74

Verandah

15