Hamilton 151

2

2

151

Coastal home blending relaxed charm with upscale elegance, offering a stylish yet comfortable living experience.

Hamilton 151

SELECT SIZE

2

2

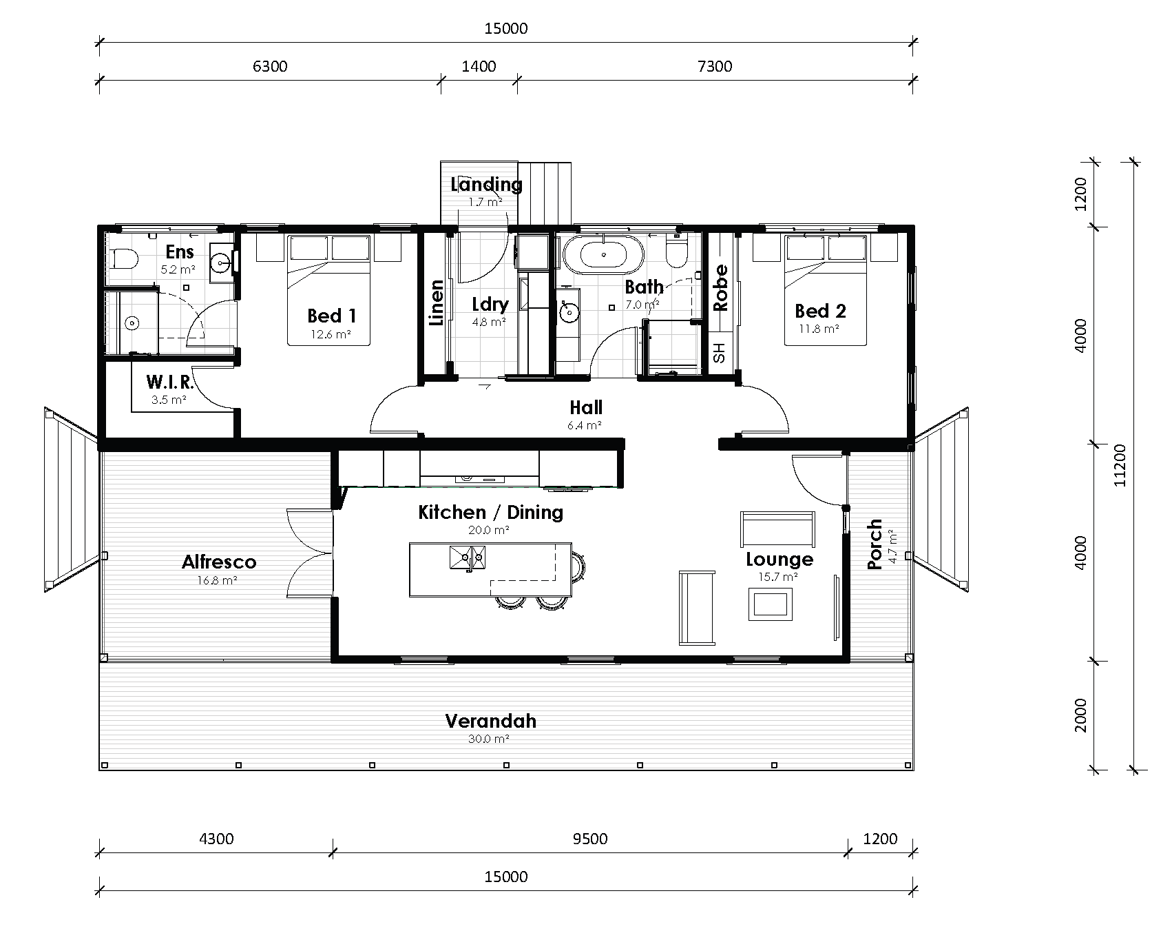
Total floor area 151m²
Floor 98m²
Veranda 30m²

The Hamilton is a clever coastal home that masterfully blends relaxed charm with upscale elegance. Designed for those who cherish both comfort and style, this home exudes a unique character that combines laid-back coastal vibes with high-end finishes. Its inviting ambiance perfectly marries casual living with refined luxury, creating a space that is as stylish as it is comfortable. The Hamilton offers a seamless fusion of charm and complexity, making it the ideal coastal home.

* Customisations will affect final dimensions.


Standard features

  • Private Master Suite
  • Walk-in Robe
  • Ensuite
  • 9ft Ceilings
  • Porch
  • Dining
  • Indoor/Outdoor Living
  • Laundry
  • Storage
  • Family Bathroom
  • Guest Bedroom
  • Air-conditioning
20260217_Hamilton_151_Floor plan

Virtual tour

logo_icon

Look it over...
Let's talk.

max-hermansson-ewFKiUYV2-8-unsplash 1

Want more information on the Hamilton 121?

Call 1800 688 044 or send us an enquiry

badge
We’ve been building modular homes for over thirty years. 
We understand that buying a home isn’t just about a physical place to live, it’s about creating a space where memories are made, and futures are built.  
We are committed to making the home building journey as incredible as possible.

Similar designs

Burleigh

Seaside

Kingscliffe-Mk1-1064x500-1

SELECT SIZE

Burleigh 295

4

2

Total area

386

Floor

212

Verandah

36

Noosa

Seaside

Kingscliffe-Mk1-1064x500-1
Loganholme

SELECT SIZE

Noosa 240

3

2

Total area

240

Floor

157

Verandah

25

Kingscliffe-Mk1-1064x500-1
Loganholme

SELECT SIZE

Noosa 276

4

2

Total area

278

Floor

177

Verandah

60

Kingscliffe-Mk1-1064x500-1
Loganholme

SELECT SIZE

Noosa 327

5

2

Total area

328

Floor

221

Verandah

100