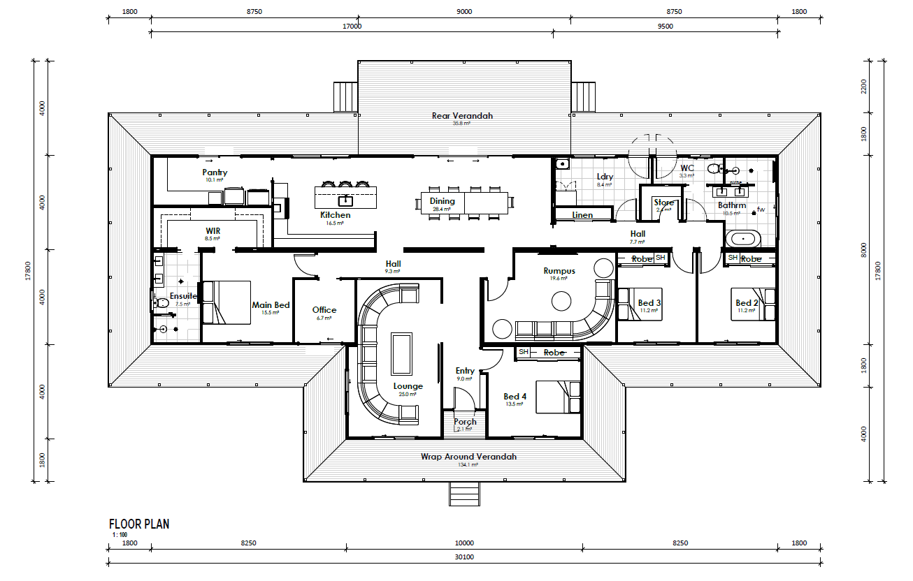
Burleigh 423

4

2

423

Elegant French Provincial meets modern Australiana farmhouse in this spacious, tranquil home set on picturesque acreage.

Burleigh 423

SELECT SIZE

423

4

2

Total floor area 423m²

The Burleigh is the ultimate combination of elegant French Provincial design and the modern Australiana farmhouse. Set against a picturesque acreage backdrop, this stately home features a wraparound verandah, intricate mouldings and stone features.  Inside, the expansive layout showcases a blend of rustic and refined elements, including exposed wooden beams, fireplace, and elegant timeless fixtures. With a spacious outdoor entertaining area, the Burleigh provides a peaceful sanctuary to enjoy the tranquillity of rural life.

* Customisations will affect final dimensions.


Standard features

  • Private Master Suite
  • Walk-in Robe
  • Ensuite
  • 9ft Ceilings
  • Porch
  • Dining
  • Indoor/Outdoor Living
  • Laundry
  • Storage
  • Family Bathroom
  • Guest Bedroom
  • Airconditioning
Screenshot 2026-04-13 143440

logo_icon

Look it over...
Let's talk.

max-hermansson-ewFKiUYV2-8-unsplash 1

Want more information on the Burleigh 423?

Call 1800 688 044 or send us an enquiry

badge
We’ve been building modular homes for over thirty years. 
We understand that buying a home isn’t just about a physical place to live, it’s about creating a space where memories are made, and futures are built.  
We are committed to making the home building journey as incredible as possible.

Similar designs

Noosa

Seaside

Kingscliffe-Mk1-1064x500-1
Loganholme

SELECT SIZE

Noosa 240

3

2

Total area

240

Floor

157

Verandah

25

Kingscliffe-Mk1-1064x500-1
Loganholme

SELECT SIZE

Noosa 276

4

2

Total area

276

Floor

177

Verandah

60

Kingscliffe-Mk1-1064x500-1
Loganholme

SELECT SIZE

Noosa 327

5

2

Total area

327

Floor

221

Verandah

100

Hamilton

Seaside

Kingscliffe-Mk1-1064x500-1
Virtual Tour Loganholme

SELECT SIZE

Hamilton 151

2

2

Total area

151

Floor

96

Verandah

30

Kingscliffe-Mk1-1064x500-1
Virtual Tour Loganholme

SELECT SIZE

Hamilton 181

3

2

Total area

181

Floor

121

Verandah

36

Kingscliffe-Mk1-1064x500-1
Virtual Tour Loganholme

SELECT SIZE

Hamilton 251

4

2

Total area

251

Floor

177

Verandah

50