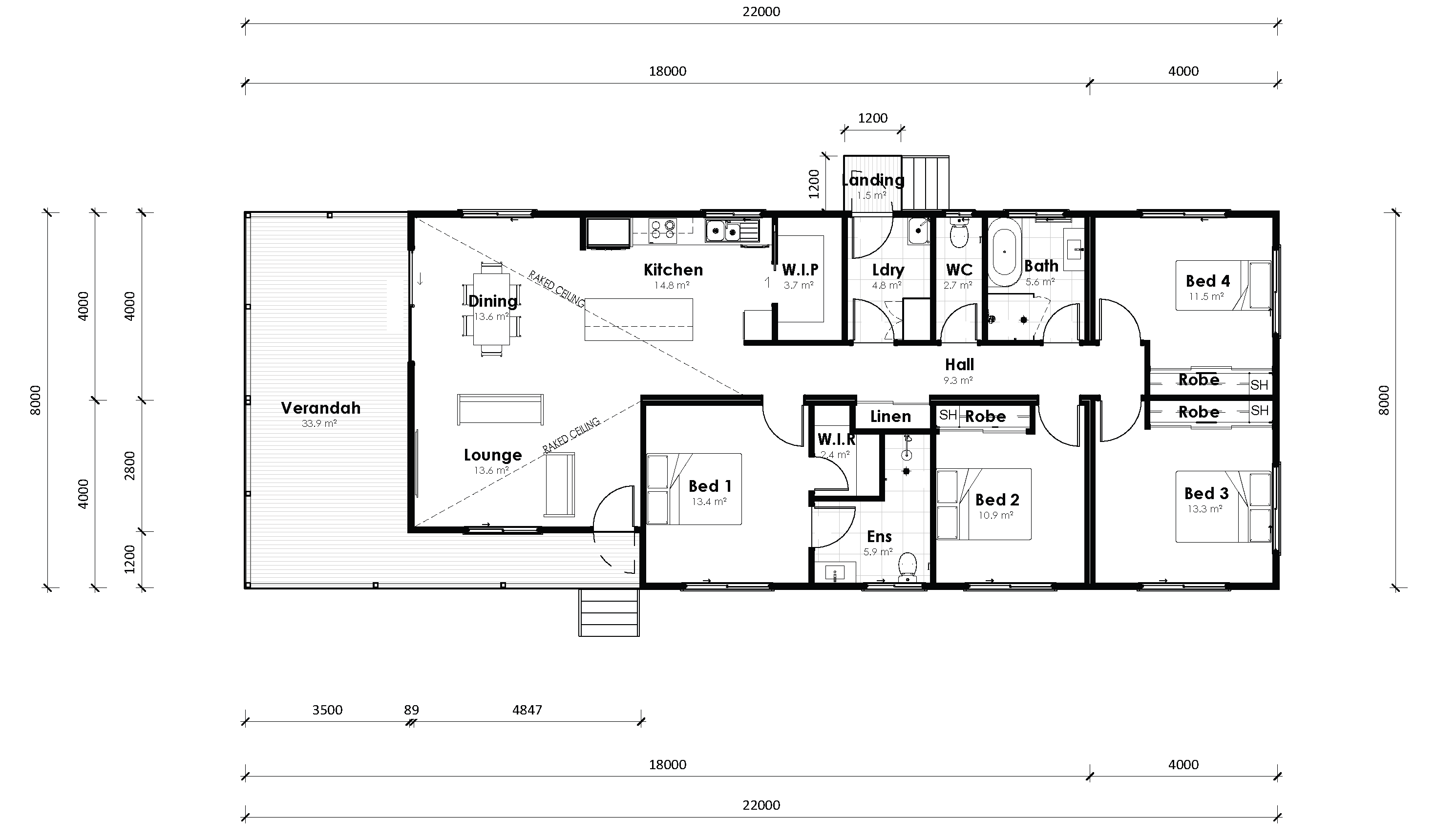
Alpha 145

4

2

145

Elegance and comfort rolled into one stunning design. Elevated rural living for those looking for a blend of modern designs and traditional charm. 

Alpha 145

SELECT SIZE

4

2

Total floor area 145m²
Floor 110m²
Verandah 33m²

Alpha is a stunning rural home designed for those who appreciate both comfort and elegance. This property offers a blend of modern amenities and traditional charm. The heart of the home is an expansive living space with large windows that flood the area with natural light. A well-appointed kitchen flows into a dining area, ideal for family gatherings. With spacious rooms and thoughtful design, Alpha is perfect for a relaxed country lifestyle.

* Customisations will affect final dimensions.


Standard features

  • Private Master Suite
  • Walk-in Robe
  • Ensuite
  • Split System Air-conditioning
  • 8ft Ceilings
20251113_Alpha_177_Floor plan

logo_icon

Look it over...
Let's talk.

max-hermansson-ewFKiUYV2-8-unsplash 1

Want more information on the Alpha 113?

Call 1800 688 044 or send us an enquiry

badge
We’ve been building modular homes for over thirty years. 
We understand that buying a home isn’t just about a physical place to live, it’s about creating a space where memories are made, and futures are built.  
We are committed to making the home building journey as incredible as possible.

Similar designs

Adavale

Outback

Kingscliffe-Mk1-1064x500-1
Virtual Tour Warwick

SELECT SIZE

Adavale 152

3

2

Total area

152

Floor

120

Verandah

31

Kingscliffe-Mk1-1064x500-1
Virtual Tour Warwick

SELECT SIZE

Adavale 179

4

2

Total area

179

Floor

144

Verandah

35

Kingscliffe-Mk1-1064x500-1
Virtual Tour Warwick

SELECT SIZE

Adavale 218

5

2

Total area

218

Floor

176

Verandah

42

Diamantina

Outback

Kingscliffe-Mk1-1064x500-1

SELECT SIZE

Diamantina 177

3

2

Total area

177

Floor

146

Verandah

31

Kingscliffe-Mk1-1064x500-1

SELECT SIZE

Diamantina 202

4

2

Total area

202

Floor

171

Verandah

31

Winton

Outback

Kingscliffe-Mk1-1064x500-1

SELECT SIZE

Winton 145

3

2

Total area

145

Floor

121

Verandah

16

Kingscliffe-Mk1-1064x500-1

SELECT SIZE

Winton 178

4

2

Total area

178

Floor

150

Verandah

21

Kingscliffe-Mk1-1064x500-1

SELECT SIZE

Winton 111

4

2

Total area

111

Floor

96

Verandah

12

Kingscliffe-Mk1-1064x500-1

SELECT SIZE

Winton 119

4

2

Total area

119

Floor

100

Verandah

16