Adavale 152

3

2

152

Experience panoramic views of your beautiful surroundings with a design that embraces the sanctuary of rural living. 

Adavale 152

SELECT SIZE

3

2

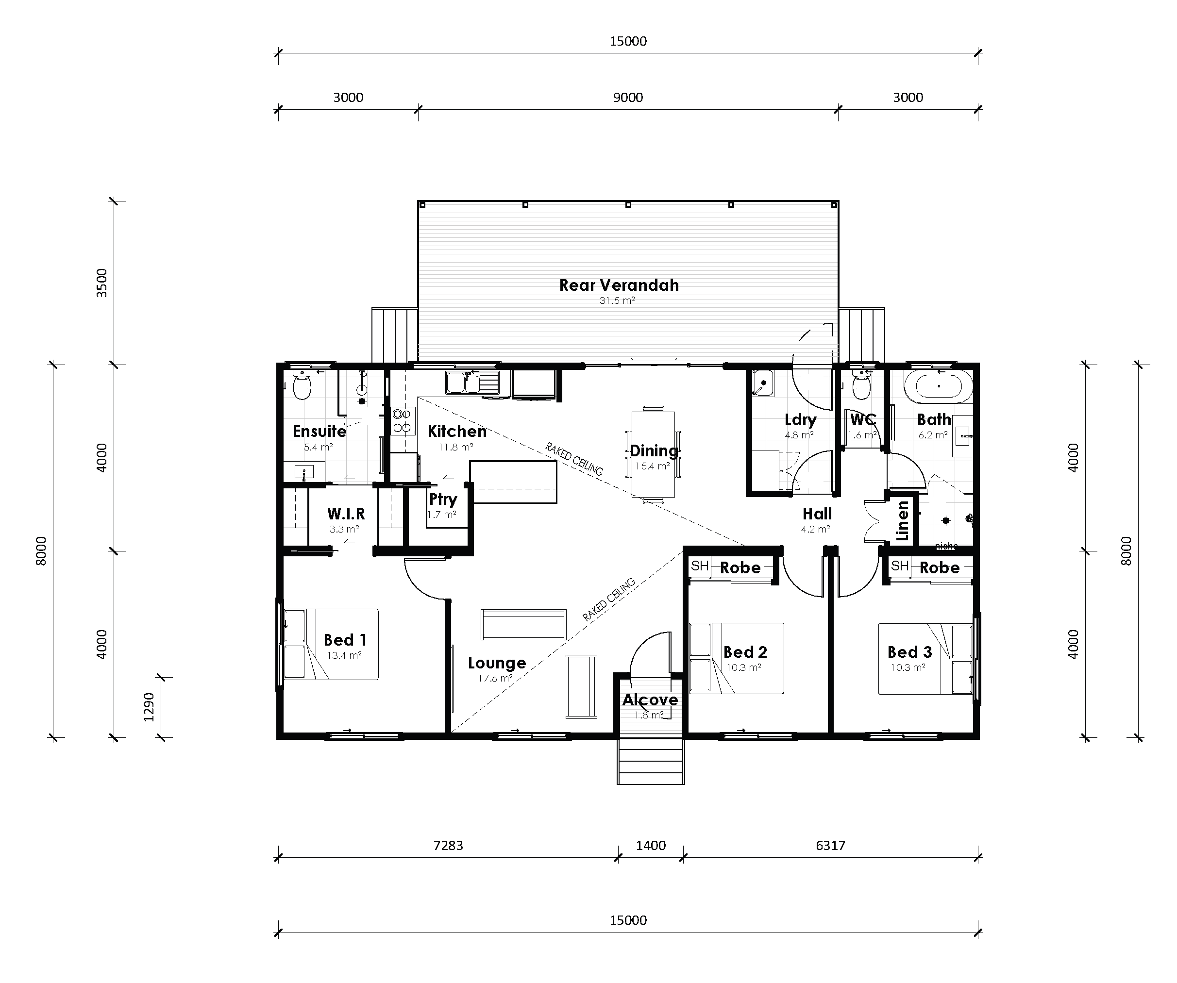
Total floor area 152m²

Adavale is a picturesque rural home that captures the essence of serene living. Inside, you'll find a spacious layout with cozy nooks perfect for reading or relaxing. The rustic kitchen, with its farmhouse accents, invites culinary creativity. Large windows provide panoramic views of the countryside, creating a bright and airy atmosphere throughout. Adavale is a sanctuary that invites you to unwind and enjoy the simple pleasures of life.

* Customisations will affect final dimensions.


Standard features

  • Private Master Suite
  • Walk-in Robe
  • Ensuite
  • Airconditioning
  • 8ft Ceilings
20251113_Adavale_152_Floor plan-1

Virtual tour

logo_icon

Look it over...
Let's talk.

max-hermansson-ewFKiUYV2-8-unsplash 1

Want more information on the Adavale 152?

Call 1800 688 044 or send us an enquiry

badge
We’ve been building modular homes for over thirty years. 
We understand that buying a home isn’t just about a physical place to live, it’s about creating a space where memories are made, and futures are built.  
We are committed to making the home building journey as incredible as possible.

Similar designs

Alpha

Rural

Kingscliffe-Mk1-1064x500-1

SELECT SIZE

Alpha 113

3

1

Total area

113

Floor

98

Verandah

14

Kingscliffe-Mk1-1064x500-1

SELECT SIZE

Alpha 145

4

2

Total area

145

Floor

110

Verandah

34

Kingscliffe-Mk1-1064x500-1

SELECT SIZE

Alpha 169

4

2

Total area

169

Floor

134

Verandah

33

Kingscliffe-Mk1-1064x500-1

SELECT SIZE

Alpha 177

4

2

Total area

177

Floor

142

Verandah

34

Diamantina

Rural

Kingscliffe-Mk1-1064x500-1

SELECT SIZE

Diamantina 177

3

2

Total area

177

Floor

146

Verandah

31

Kingscliffe-Mk1-1064x500-1

SELECT SIZE

Diamantina 202

4

2

Total area

202

Floor

171

Verandah

31

Winton

Rural

Kingscliffe-Mk1-1064x500-1

SELECT SIZE

Winton 145

3

2

Total area

145

Floor

121

Verandah

16

Kingscliffe-Mk1-1064x500-1

SELECT SIZE

Winton 119

4

2

Total area

119

Floor

100

Verandah

16

Kingscliffe-Mk1-1064x500-1

SELECT SIZE

Winton 145

3

2

Total area

145

Floor

121

Verandah

16

Kingscliffe-Mk1-1064x500-1

SELECT SIZE

Winton 178

4

2

Total area

178

Floor

150

Verandah

21